Schulhaus Widlisbach Rüttenen

Beschrieb
ID:
16.09
Art:
Gesamtsanierung
Auftragsart:
2. stufiger Wettbewerb
Bauherr:
Einwohnergemeinde Rüttenen
Ort:
Rüttenen, SO
Bausumme:
5.9 Mio
Jahr:
2016 - 2019
Wettbewerb:
1. Rang

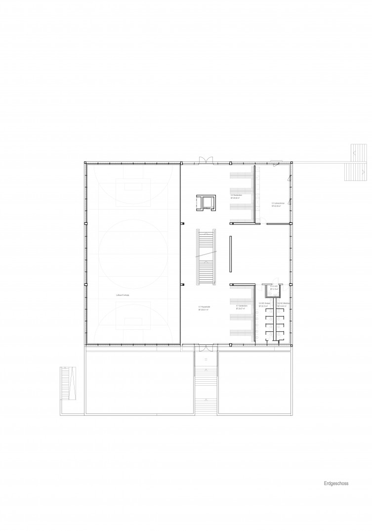
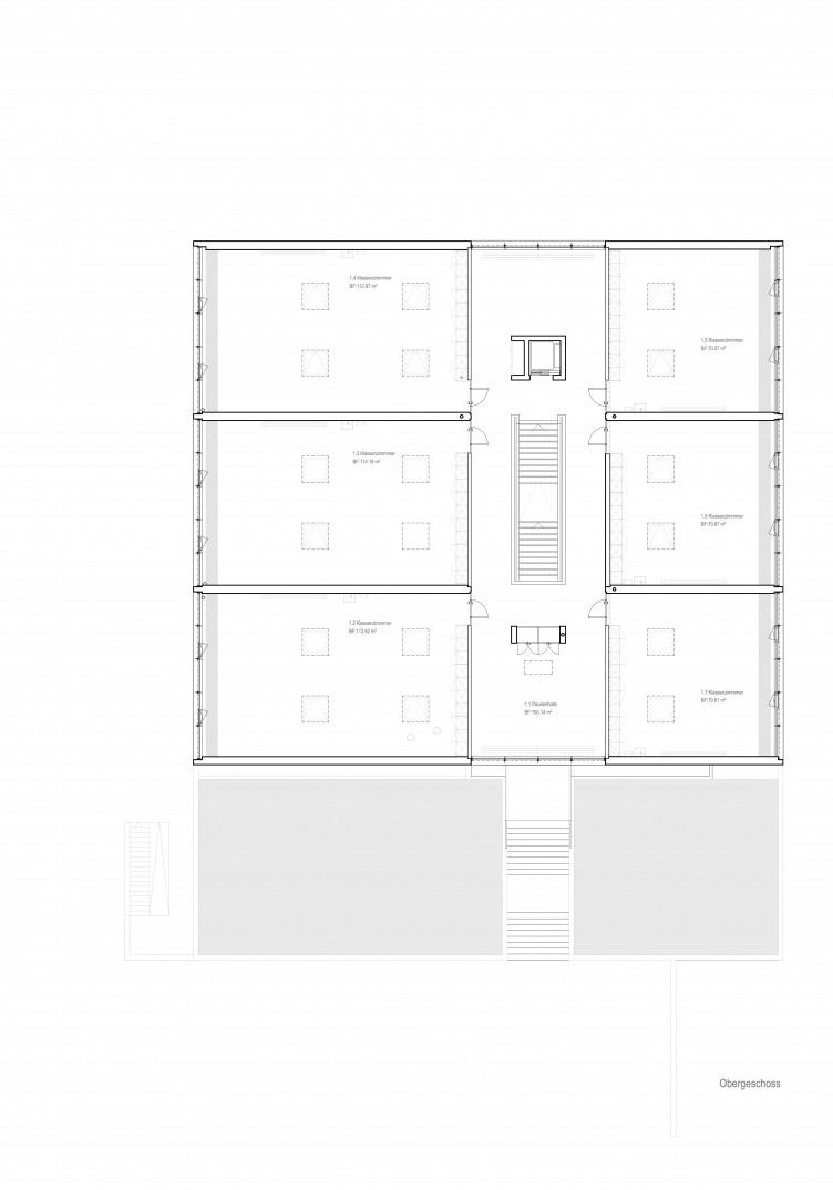
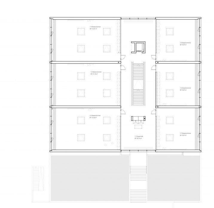
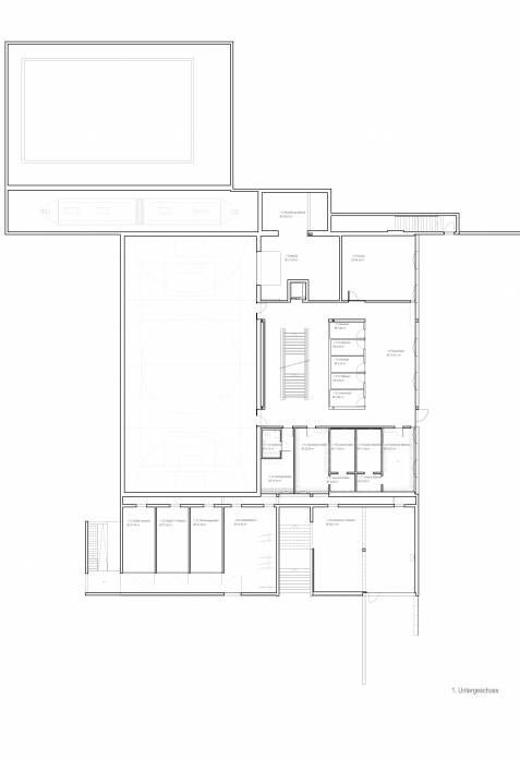
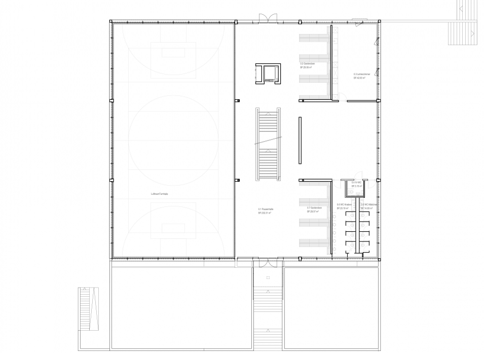
Das Schulhaus Widlisbach in Rüttenen wurde 1968-71 erbaut und hat die Einstufung „hervorragend“ erhalten im Bezug zum Inventar zur Architektur der Nachkriegsmoderne. Es handelt sich um ein potenziell schützenswertes Baudenkmal. Bei der Gesamtsanierung sollte unter Beachtung der denkmalpflegerischen Grundsätzen folgende Punkte behandelt werden: Barrierefreiheit, Erdbebensicherheit, Brandschutz, Energiegesetz, Sicherheit + Gesundheitsschutz. Es war unser Ziel die nötigen Massnahmen zur Erfüllung der gesetzten Ziele in einer möglichst subtilen, zurückhaltenden Art und Weise umzusetzen. Die vorherrschenden strengen Strukturen und Raster haben dabei geholfen die Erdbebenaussteifende Wand und den Lift (über alle Geschosse) so zu  platzieren, dass sie mit der best. Struktur verschmelzen. 

 

Dem Betrachter fällt erst bei genauerer Betrachtung klar welche Elemente alt und welche neu sind. Durch eine aufwendige Betonsanierung konnte die best. Sichtbetonobtik beibehalten werden. Bei der Farb- und Materialwahl wurde bewusst auf die best. und vorherrschenden Materialien (Beton, Glas, Aluminium, Terrazzoboden, Holz) Rücksicht genommen und die neu eingeführten Materialien und Formen dementsprechend ausgewühlt und angepasst. Das Haustechnikkonzept konnte geschickt, nicht sichtbar in der heruntergehängten und demontierbaren Decke geführt werden.