Brühl Nord, Grenchen

Beschrieb
ID:
K20.07
Art:
Neubau
Auftragsart:
Studienauftrag
Bauherr:
hftm & Swissmechanic
Ort:
Grenchen, SO
Jahr:
2020 -
Wettbewerb:
2. Rang

Der Projekt- und Ideenperimeter liegt an einer prominenten Lage direkt südlich des Hauptbahnhof Grenchen Süd. Der Hauptbahnhof liegt nur wenige Gehminuten vom Campus Brühlpark entfernt.Der Langsamverkehr bewegt sich einerseits durch die Bahnhofsunterführung, andererseits durch die beiden Bahnunterführungen der Leon-Breitling-Unterführung westlich und die Howeg-Unterführung östlich des Hauptbahnhofes. In der Zukunft ist eine Bahnüber- oder unterführung bei der Girardstrasse zur Brühlstrasse geplant, welche den neuen Campus direkt mit dem Langsamverkehr aus dem Stadtzentrum Grenchen verbinden würde. Der motorisierte Individualverkehr (MIV) gelangt mehrheitlich von der Umfahrung Flughafenstrasse oder über die beiden Bahnhofsunterführungen entlang der Riedernstrasse zum Projektperimeter.

 

Städtebau | Architektur
 
Unser Projektvorschlag sieht eine ortsbauliche Einpassung mit klar gefassten und kompakten Gebäudekörpern vor. Nebst dem Längsbau des Schulungsgebäudes A, schlagen wir fünf weitere Solitärbauten vor. Die Geschossfläche des viergeschossige Schulgebäude A wurde so optimiert, dass die Grundrissorganisation optimal für die Nutzer abgestummen ist. Das Schulgebäude A weisst eine Gebäudehöhe von 15.40 m auf. Die weiteren Gebäude wurden alle mit vier Vollgeschossen geplant. Die Geschossflächen wurden der Wohnnutzung entsprechend optimiert. Durch die Setzung der vier Wohnbauten B1 und B2, sowie C1 und C2 in einer parkähnlichen Umgebung, werden diese durch einen Grüngürtel von Schulbetrieb abgetrennt. Trotz der räumlichen Nähe zum Schulgebäude A entstehen so attraktive Wohnungen. Der fünfte Solitärbau D bildet den nordöstlichen Abschluss des Campus Brühlpark.

Dort ist eine Mischnutzung aus Dienstleistung und Wohnen vorgesehen. Mit unserer Freiraumgestaltung schlagen wir verschiedene Plätze mit unterschiedlichen Aufentahltsqualitäten für die unterschiedlichen Nutzer des Campus Brühlpark vor. Das Schulgebäude A soll einen überregionale Anziehungskraft ausstrahlen. Die Adressbildung des Schulgebäude A mit dem Haupteingang, erfolgt über einen auskragenden und autofreien Gebäudeteil an der nordwestlichen Ecke, an der Riedernstrasse und Brühlstrasse. Dieser gedeckte Platz ermöglicht den Studierenden ein sicheres Ankommen und hat eine starke Anziehungskraft als Treffpunkt. Das architektonische Konzept des Gebäudeausdrucks basiert auf einer tektonischen Auseinandersetzung der Fassadengestaltung. Die starke Horizontalität des Gebäudevolumens wird durch die vertikalen Gliederung der Stützenverkleidungen in der Fassade, gebrochen. Durch das geschossweise versetzten der Öffnungsflügel wird das Fassadenbild weiter aufgelockert.

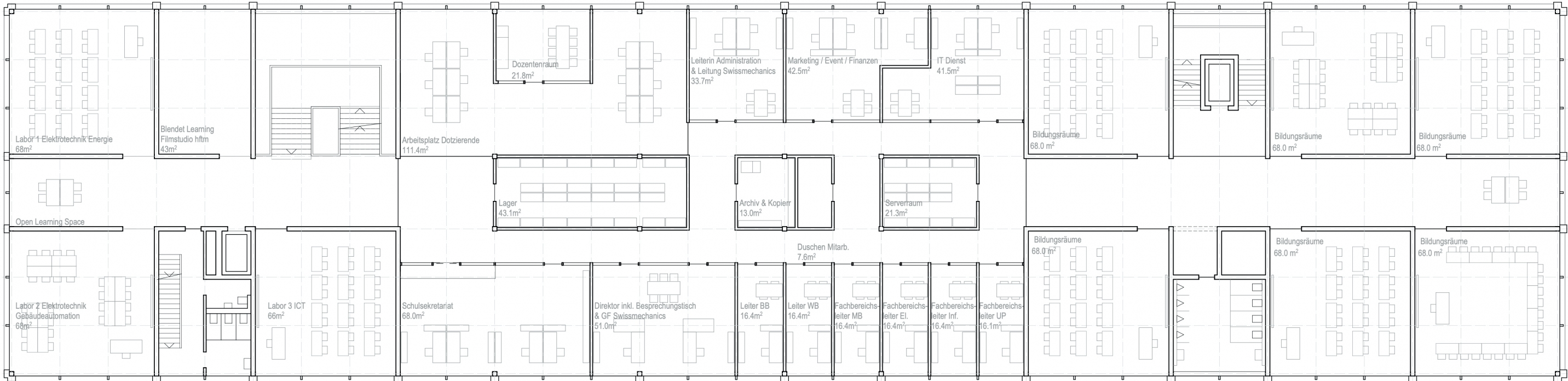
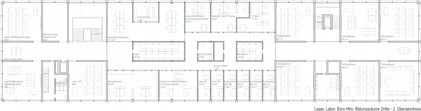
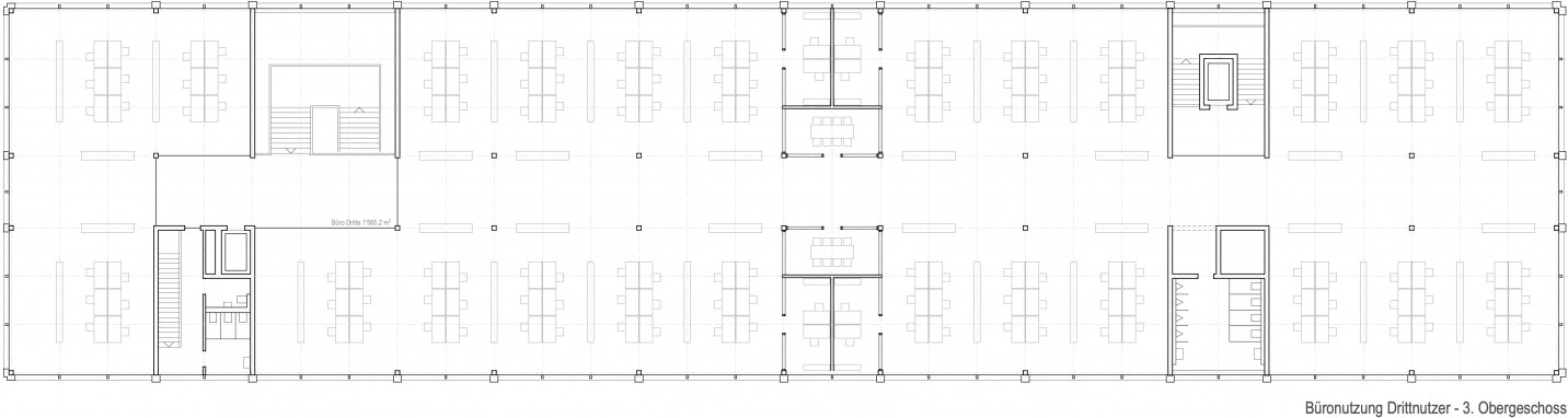
Das Schulgebäude A wird über eine grosszügige repräsentative Treppe bei Haupteingang sowie zwei weiteren Treppenhäuser erschlossen. Diese werden in jedem Geschoss durch eine zentrale Begegnungszone, miteinander verbunden. Dadurch wird eine optimale Verbindung zwischen allen Räumen geschaffen. Im Erdgeschoss befindet sich neben dem Haupteingang mit Foyer und Treppe, dem Bistro und Sanitärräume die grosse Halle für die Swissmechanic. Für die maximale Flexibilität der Organisation der Maschinen, Arbeittsstationen und Werktischen ist die Halle als Open Space Fläche konzipiert.

Die Wohngebäude treten aus kubische viergeschossige Solitäre in Erscheinung. Diese sind in eine parkähnliche Anlage integriert. In der architektonischen Formensprache nehmen sie bewusst einen Dialog mit dem markanten Schulgebäude A auf. Der Campus Brühlpark wird so als Einheit wahrgenommen.